XLC型旋流沉砂(sha)池除砂機_南(nán)京新藍深井(jing)泵廠
關(guan)于 産品(pǐn) 聯系
XLC型(xing)旋流沉砂池(chi)除砂機

詳細(xì)信息


XLC型旋流(liu)沉砂池除砂(sha)機


産品用途(tu):
 XLC型旋流沉砂(sha)池除砂機用(yòng)于污水處理(li)廠沉澱池和(he)曝氣沉砂池(chi),将沉降在池(chí)底的砂子、煤(méi)渣等重度較(jiào)大的顆粒和(he)污水的混合(hé)液提升并輸(shū)送至與砂水(shui)分離器連結(jié)的渠道。

産品(pin)型号說明:



産(chan)品特點:
 1、占地(di)面積小;
2、沉砂(sha)效果受水量(liang)變化影響很(hěn)小;砂水分離(lí)效果好,分離(li)出的砂子含(hán)水率低,有機(jī)物含量少,便(biàn)于運輸;
3、操作(zuò)方便、維護簡(jiǎn)單,壽命長;
4、鼓(gu)風機采用國(guo)外先進技術(shu),噪音低;對周(zhou)圍環境影響(xiang)小,衛生條件(jian)好。
 


 

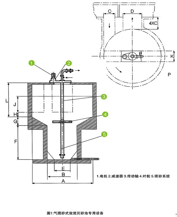
構造及工(gong)作過程:
 XLC型旋(xuan)流沉砂池除(chú)砂機,如圖所(suo)示由葉輪、傳(chuan)動軸、電動機(jī)、減速器、吸砂(shā)系統等組成(chéng)。
進水從切線(xian)方向進入池(chí)中,形成旋流(liú),旋流攪拌機(ji)控制水流的(de)流速與流态(tai),水流夾帶大(dà)量粘附有機(jī)物的砂,在槳(jiǎng)闆攪抖剪切(qie)力下互相剝(bāo)離,依靠砂的(de)自身重力和(he)旋流作用向(xiang)中心砂鬥下(xià)沉,剝離的有(you)機物随軸向(xiang)水流向上溢(yì)走。砂鬥積聚(jù)的砂經空氣(qì)提升泵或砂(sha)泵提升,砂及(jí)少量污水進(jìn)入池外砂水(shui)分離器内,砂(shā)分離外排,污(wū)水回流至格(ge)栅井。
 
 

聯系我們(men)

  • 全國咨詢熱(rè)線全國咨(zi)詢熱線 025-57104069
  • 傳真(zhēn)熱線 13585159616
  • 聯(lian)系郵箱聯系郵(yóu)箱 [email protected]
  • 公司地址(zhǐ)公(gōng)司地址 江蘇(su)省南京市六(liù)合區永甯路(lu)46号
总 公 司急(ji) 速 版WAP 站H5 版无(wu)线端AI 智能3G 站(zhàn)4G 站5G 站6G 站
·
 
·